The sunshine house
PHASE:
Under Construction 2026
ROLE:
Architect
LOCATION:
Alpine, Texas
SIZE:
4000 sf
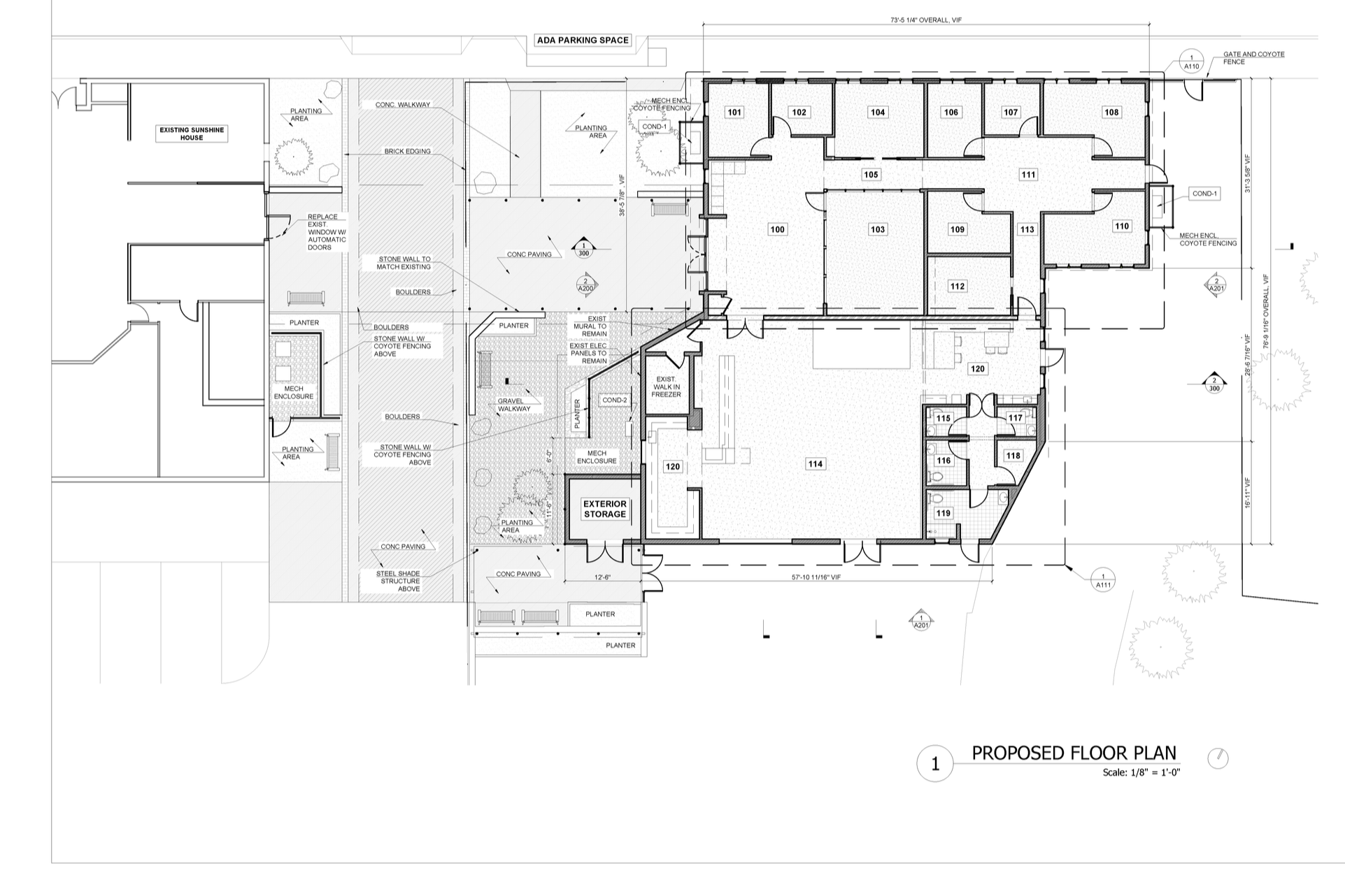
This project involves the renovation and integration of the historic Ole Crystal Bar with its new owner and neighbor, the Sunshine House. The Sunshine House is a vital non-profit organization dedicated to enhancing the quality of life for seniors, the homebound, and disabled residents in the Alpine and Marathon communities through quality nourishment and social enrichment programs.
The building itself has a rich history, having originally served as a showroom for a car dealership before its long tenure as the Ole Crystal Bar. The transformation will repurpose the structure to serve as the main operational hub for the Sunshine House. The new layout will feature a total of nine offices, a modern conference room, a dedicated event space, and an employee lounge area. The newly activated backyard space is planned for community use, notably as the venue for the annual Wild West Night fundraiser and other organizational events throughout the year.
The renovation is extensive, and great care has been taken to honor the building's past. A key element of the design process involved documenting the original cowboy murals that were discovered scattered throughout the structure, ensuring these unique historical artworks are preserved and thoughtfully incorporated into the buildout of the new office spaces.
