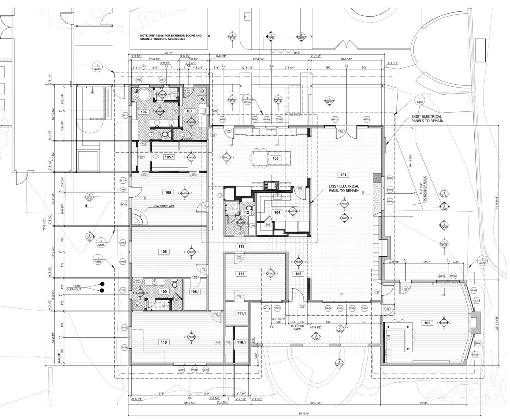
THUNDER OAK RANCH
PHASE:
Construction 2026
ROLE:
Architect
LOCATION:
Outside Fort Davis, Texas
SIZE:
4000 SF
BUILDER:
Sagebrush Construction
This historic residence is undergoing a complete overhaul, meticulously designed to honor its past while embracing the future. New vaulted ceilings and strategic skylights flood the interior with beautiful desert light, also being added are custom casement windows, elegant arches, and intricate rockwork.
A centerpiece of this transformation is the "Bear Bar," a room with some history. It occupies the space that was once the garage, where a black bear famously took up residence for a few days, separated from the main home only by a sheet of plywood. Now a cozy bar, the room showcases custom, hand-carved bears, reflecting the owners' appreciation for local history and the rugged outdoors.
The entire building has been opened up, with the floorplan thoughtfully optimized to maximize light and circulation. Ceiling heights have been dramatically raised, significantly enhancing the sense of open space. Large picture windows are being placed to frame and capture the sweeping views across the West Texas landscape.
